18/05/2022

Nouvelle rue du village


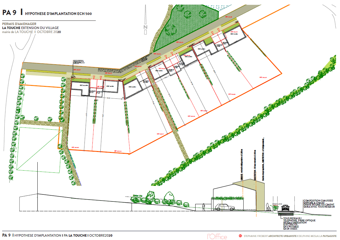
Mise en vente des 7  lots, de 561 m2 à 784 m2, sur terrain en cours de viabilisation.

Consultez les pièces du permis d'aménager, ci-contre, pour connaître les modalités de construction.

Réservation de terrain possible :
- soit par mail à la mairie avec vos coordonnées
(mairie.la.touche@orange.fr)
- soit en venant en mairie le mercredi.

Taille des lots la Touche.png
Hypothese implantation la Touche.png